
Zimowa promocja! Nasze apartamenty w cenie 759 000 zł!
Na sprzedaż 4 pokojowe mieszkanie z dużym ogrodem, zlokalizowane w Dąbrowie Górniczej na ulicy Brzozowej. Mieszkanie ma powierzchnię 86 m2. Przynależy do niego ogród o powierzchni około 90 m2 oraz dwa zewnętrzne miejsca postojowe przed budynkiem.
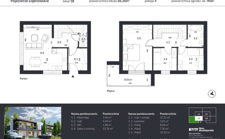
Układ pomieszczeń
Parter: wiatrołap, hall, strefa dzienna z aneksem kuchennym
Piętro: korytarz, pokój 1, pokój 2, pokój 3, łazienka
Standard wykończenia
Cała inwestycja realizowana jest w standardzie premium, a mieszkania oddawane będą w podwyższonym stanie deweloperski. W ramach podwyższonego stanu deweloperskiego na całej powierzchni mieszkania znajdzie się ogrzewanie podłogowe zasilane pompą ciepła (pompa w standardzie), co w połączeniu z zamontowaną rekuperacją pozwoli znacznie obniżyć koszty ogrzewania i eksploatacji mieszkania w przyszłości. Stolarka okienna PCV, trzyszybowa wraz z zewnętrznymi roletami antywłamaniowymi w standardzie.
Lokalizacja
– inwestycja znajduje się bezpośrednio w sąsiedztwie terenów rekreacyjnych, takich jak jeziora Pogoria, gdzie dostępne są trasy spacerowe, rowerowe oraz możliwość uprawiania sportów wodnych
– dojazd do trasy S1 w kierunku Katowic zajmuje 5 minut, a podróż samochodem do centrum Katowic trwa ok. 20 minut. Mimo bliskości natury, działki położone są w odległości 15-minutowego spaceru od Gołonoga – największej i najgęściej zaludnionej dzielnicy Dąbrowy Górniczej
– dzięki bliskiemu sąsiedztwu terenów zurbanizowanych, nie ma problemu z dostępem do sklepów, usług, szkół, przedszkoli oraz punktów komunikacyjnych
Planowany termin zakończenia inwestycji: III kwartał 2026
Promocja ograniczona czasowo!
W skład wlicza ceny wlicza się: apartament za cenę 757 000 zł brutto oraz dwa miejsca postojowe w cenie 1000 zł brutto za sztukę.
Inwestycję realizuje: BUDOWAPLUS SPOŁKA Z OGRANICZONĄ ODPOWIEDZIALNOŚCIĄ z siedzibą w Dąbrowie Górniczej przy ulicy Szkolnej 50A

Zadzwoń
503 555 503
Adres biura
ul. Ludowa 42C,
Dąbrowa Górnicza