
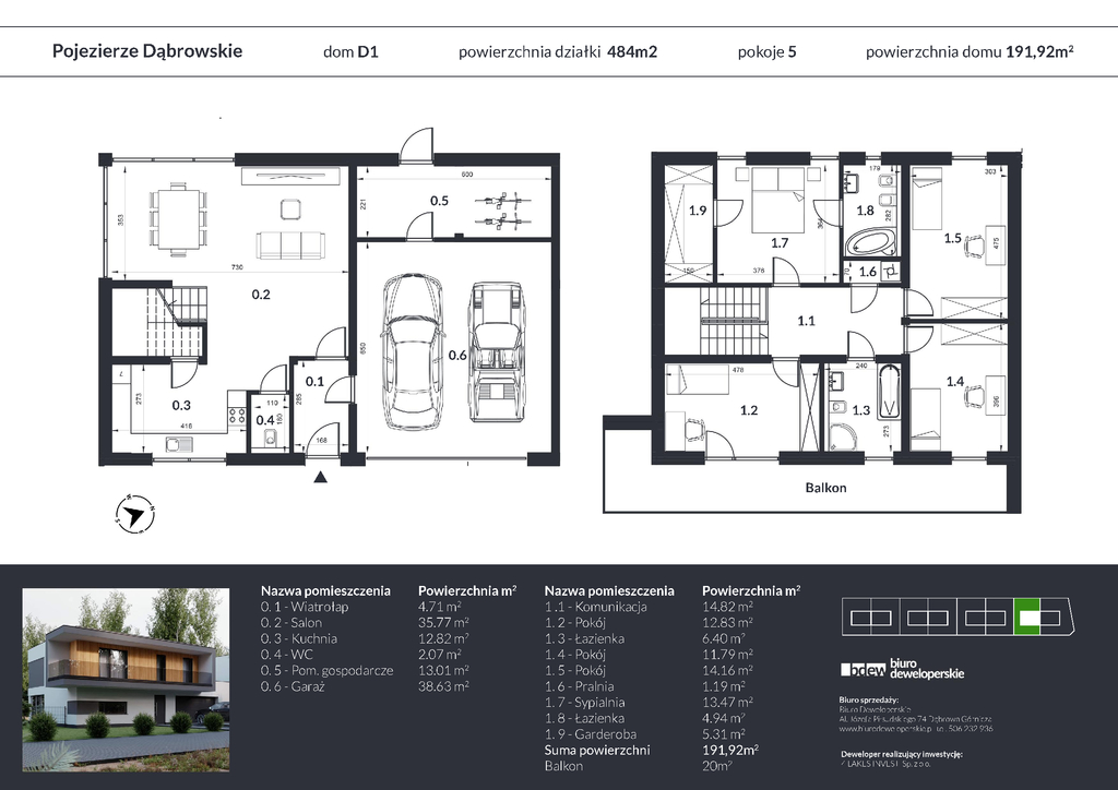
Pojezierze Dąbrowskie to nowa, prestiżowa inwestycja w Dąbrowie Górniczej zlokalizowana przy ulicy Brzozowej.
Przedmiotem oferty jest dom w zabudowie bliźniaczej o powierzchni 192 m², do którego przynależy duży ogród oraz dwustanowiskowy garaż w bryle domu.
Układ domu:
Parter: dwustanowiskowy garaż w bryle domu, pomieszczenie gospodarcze, wiatrołap, kuchnia, WC, strefa dzienna, spiżarnia
Piętro: cztery sypialnie, dwie łazienki i garderoba
Standard wykończenia
W ramach podwyższonego stanu deweloperskiego na całej powierzchni domów znajdzie się ogrzewanie podłogowe zasilane pompą ciepła (pompa w standardzie), co w połączeniu z zamontowaną rekuperacją pozwoli znacznie obniżyć koszty ogrzewania. Domy można zakupić również w stanie surowym zamkniętym- po więcej informacji zapraszamy do kontaktu z agentem.
Planowany termin oddania domów do użytku, to IV kwartał 2025 roku.
Lokalizacja
Inwestycja znajduje się bezpośrednio w sąsiedztwie terenów rekreacyjnych, takich jak jeziora Pogoria na których można uprawiać sporty wodne ale też korzystać z tras spacerowych i rowerowych. Dojazd do trasy S1 w kierunku Katowic zajmuje 5 minut, a podróż samochodem do centrum Katowic trwa ok. 20 minut. Mimo bliskości natury, działki położone są w odległości 15-minutowego spaceru od Gołonoga – największej i najgęściej zaludnionej dzielnicy Dąbrowy Górniczej. Dzięki bliskiemu sąsiedztwu terenów zurbanizowanych, nie ma problemu z dostępem do sklepów, usług, szkół, przedszkoli oraz punktów komunikacyjnych.
Zapraszam do kontaktu

Zadzwoń
503 555 503
Adres biura
ul. Ludowa 42C,
Dąbrowa Górnicza