
Pojezierze Dąbrowskie to nowa inwestycja na mapie Dąbrowy Górniczej, zlokalizowana przy ulicy Brzozowej.
Na sprzedaż dom w zabudowie bliźniaczej o powierzchni 172 m2 z dużym ogrodem oraz dwustanowiskowym garażem w bryle budynku.
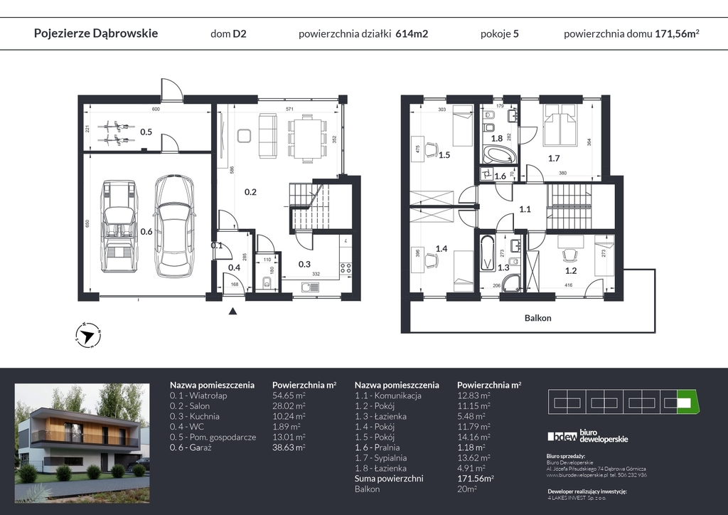
Układ domu:
Parter: dwustanowiskowy garaż w bryle budynku, pomieszczenie gospodarcze, wiatrołap, kuchnia, WC, przestronna strefa dzienna z wyjściem na taras, spiżarnia
Piętro: cztery sypialnie i dwie łazienki.
Dom oddawany będzie w stanie surowym zamkniętym. Przewidziane źródło ogrzewania to pompa ciepła. Dom został również przygotowany pod montaż rekuperacji.
Lokalizacja
Inwestycja znajduje się bezpośrednio w sąsiedztwie terenów rekreacyjnych, takich jak jeziora Pogoria na których można uprawiać sporty wodne, ale też korzystać z tras spacerowych i rowerowych. Dojazd do trasy S1 w kierunku Katowic zajmuje 5 minut, a podróż samochodem do centrum Katowic trwa ok. 20 minut. Mimo bliskości natury, działki położone są w odległości 15-minutowego spaceru od Gołonoga – największej i najbardziej zurbanizowanej dzielnicy Dąbrowy Górniczej. Dzięki bliskiemu sąsiedztwu terenów zurbanizowanych, nie ma problemu z dostępem do sklepów, usług, szkół, przedszkoli oraz punktów komunikacyjnych.
Planowany termin oddania inwestycji: grudzień 2025
Zapraszam do kontaktu

Zadzwoń
503 555 503
Adres biura
ul. Ludowa 42C,
Dąbrowa Górnicza